Oficinas Sociedad Médica HCC

ubicación: hospital de clínicas caracas. edificio principal

año: 2022

status: proyecto

cliente: hospital de clínicas caracas

director de proyecto:

iliana germán y manuel barrios

arquitectura:

yabeth bautista

instalaciones sanitarias:

víctor aguirre

instalaciones eléctricas:

víctor aguirre

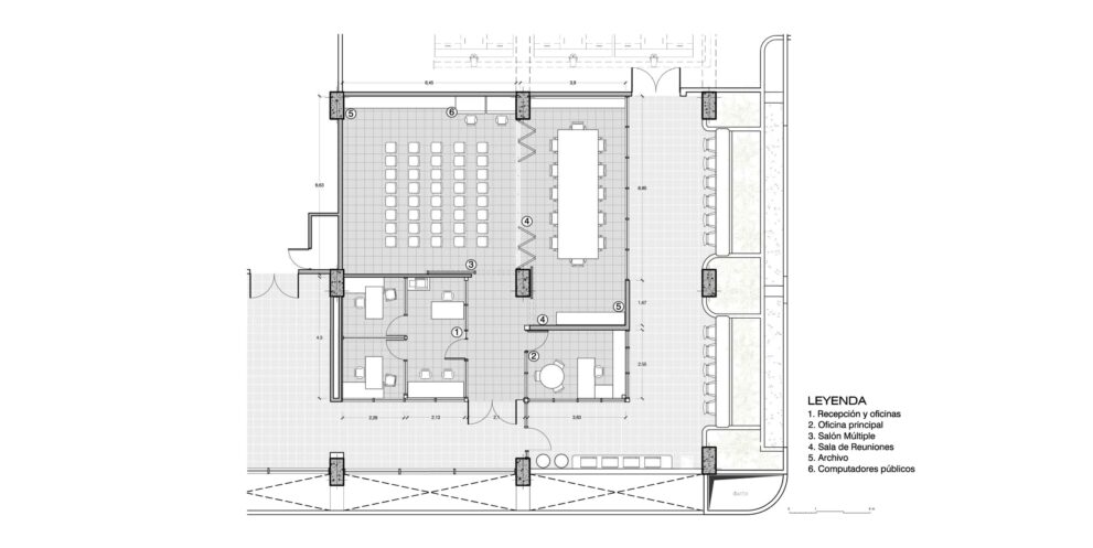
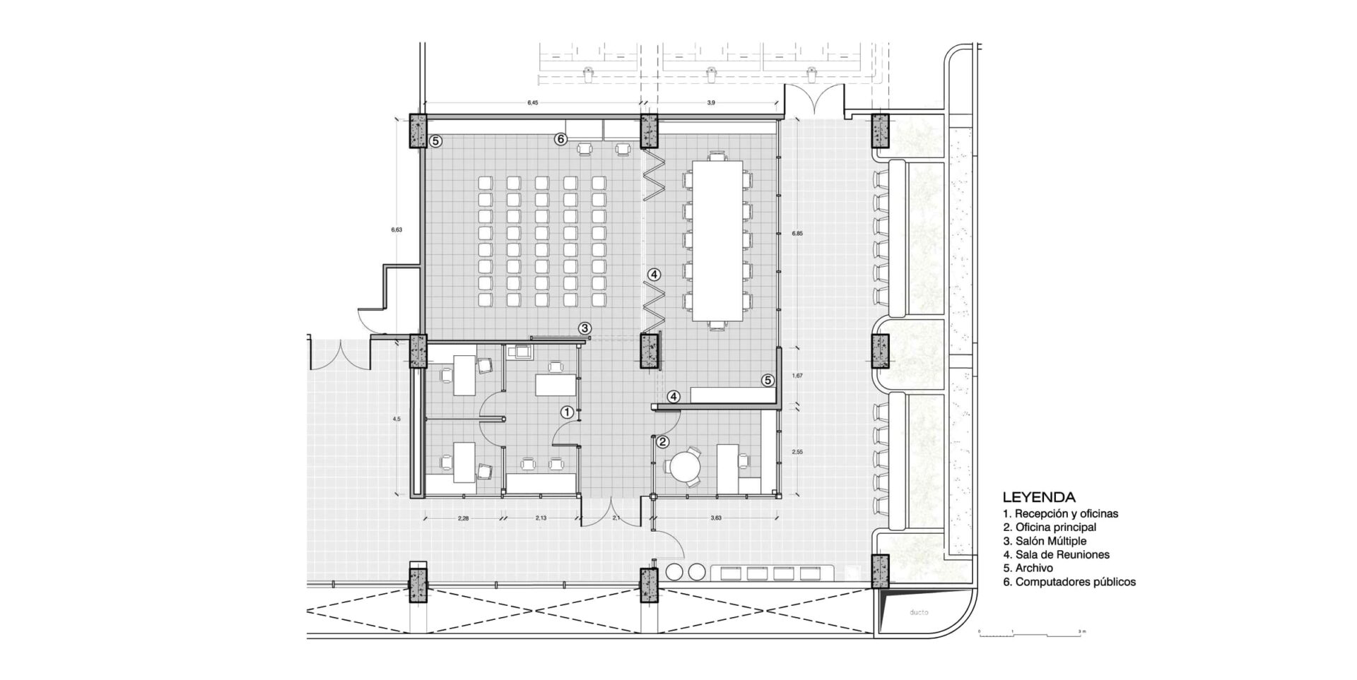
Para la nueva sede de las oficinas de la Sociedad Médica en el Hospital de Clínicas Caracas, se desea propiciar el espacio de intercambio, discusión y continuo aprendizaje que caracteriza al gremio. Es por ello que además de una pequeña zona de oficinas, el área a remodelar debe tener la flexibilidad para convertirse en una mediateca, salas de reuniones, un pequeño auditorio, etc.